Real estate Anthony Builders, Inc.
"Custom Home Builders"

Serving Bethlehem and the Lehigh Valley

THE RATHMORE
by

Frank Betz Associates, Inc.

2,930 square feet of living space
4 bedrooms, 3.5 baths, and a 2-car garage
$407,300 - $436,600

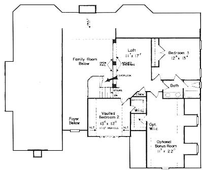
The Rathmore

Floor Plans

1st Floor
2nd Floor
The Rathmore layout
The Rathmore layout

Return to Frank Betz Designs

Click here to Visit The Anthony Builders Community Guide!

Click here to request more information from Anthony Builders


Home · Virtual Tours · Community Guide · The Homebuilding Process · European Design
Home Features and Specifications · What's New! · About Us · Contact Us

Anthony Builders, Incorporated
434 Clearfield Street
Freemansburg, PA 18017
610-865-9314